49 Patrician Villas, Stillorgan, Co.Dublin, A94 DT26, A94 DT26
49 Patrician Villas, Stillorgan, Co.Dublin, A94 DT26, A94 DT26
Price
€550,000
Type
Semi-Detached House
Status
For Sale
BEDROOMS
3
BATHROOMS
2
Size
75sq. m
BER
BER No: 112364690
EPI: 324.91
Description
3 bed Semi-Detached house with large back and side garden. Conveniently located within walking distance of Stillorgan Village and the N11 for speedy public transport to the city centre. There are a host of schools close by.
Located in the heart of Patrician Villas, located in one of Stillorgan`s most established and sought-after residential areas. 49 Patrician Villas is a well-proportioned three-bedroom, one bathroom home. The property occupies a quiet, tree-lined street and offers a practical layout with scope for modernisation or extension (subject to planning permission).
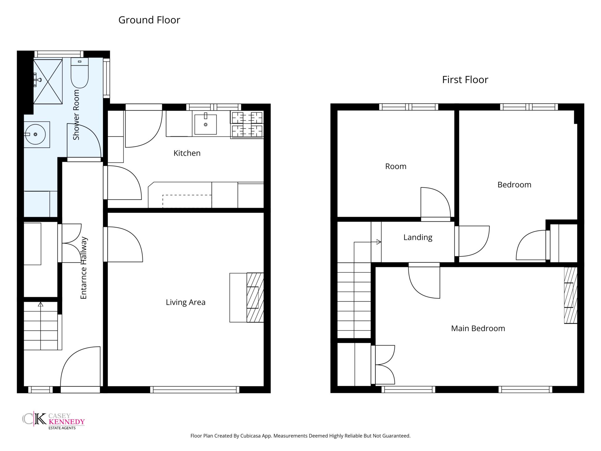
The accommodation comprises of a front living room, along with a family bathroom on the ground-floor, the kitchen situated at the rear of the house, provides views over the private rear garden and direct access to the outdoors, creating a practical flow for family living. Upstairs, there are three bedrooms, two doubles and one single.
The home presents a solid opportunity for those looking to add value through refurbishment or extension, or for buyers seeking a comfortable family home in a convenient location.
Patrician Villas is a quiet and mature development, just a short walk from Stillorgan Village with its local shops, cafes, and amenities. Minutes away from the N11 and the M50 giving easy, quick access to Dundrum town and the city centre. As well as it being exceptionally well connected by public transport with multiple bus routes.
This property represents an excellent opportunity to acquire a practical and well located family home in one of South Dublin`s most desirable residential areas.
Features
- Easy access to transport links and premier local schools
- Large corner site
- Potential to extend to the side and rear (SPP)
- Gas Fire Central Heating
- Large rear and front garden
- Excellent local amenities
- 3 Bedrooms
- Close proximity to Stillorgan and Dundrum Shopping Centre
Accommodation
Hallway: - 1.83m (6'0") x 5.17m (17'0")
With under storage closet
Living room area - 3.6m (11'10") x 4m (13'1")
With inset gas fire
Kitchen - 3.59m (11'9") x 2.25m (7'5")
With gas hob and electric oven
Bathroom - 1.82m (6'0") x 3.63m (11'11")
With tile floor and electric shower
Landing - 1.69m (5'7") x 0.94m (3'1")
Bedroom 1 - 4.65m (15'3") x 2.75m (9'0")
Main Double Bedroom
Bedroom 2 - 2.73m (8'11") x 3.5m (11'6")
Second Double Bedroom
Bedroom 3 - 2.7m (8'10") x 2.46m (8'1")
Single Bedroom
Comparables
Other comparable properties that sold recently
Floorplan
Stillorgan Neighbourhood Guide
Explore prices, growth, people and lifestyle in Stillorgan


