95a Lakelands Close, Stillorgan, A94 F671, A94 F671
95a Lakelands Close, Stillorgan, A94 F671, A94 F671
This property is no longer available.
Type
Detached House
Status
Sale Agreed
BEDROOMS
3
BATHROOMS
3
Size
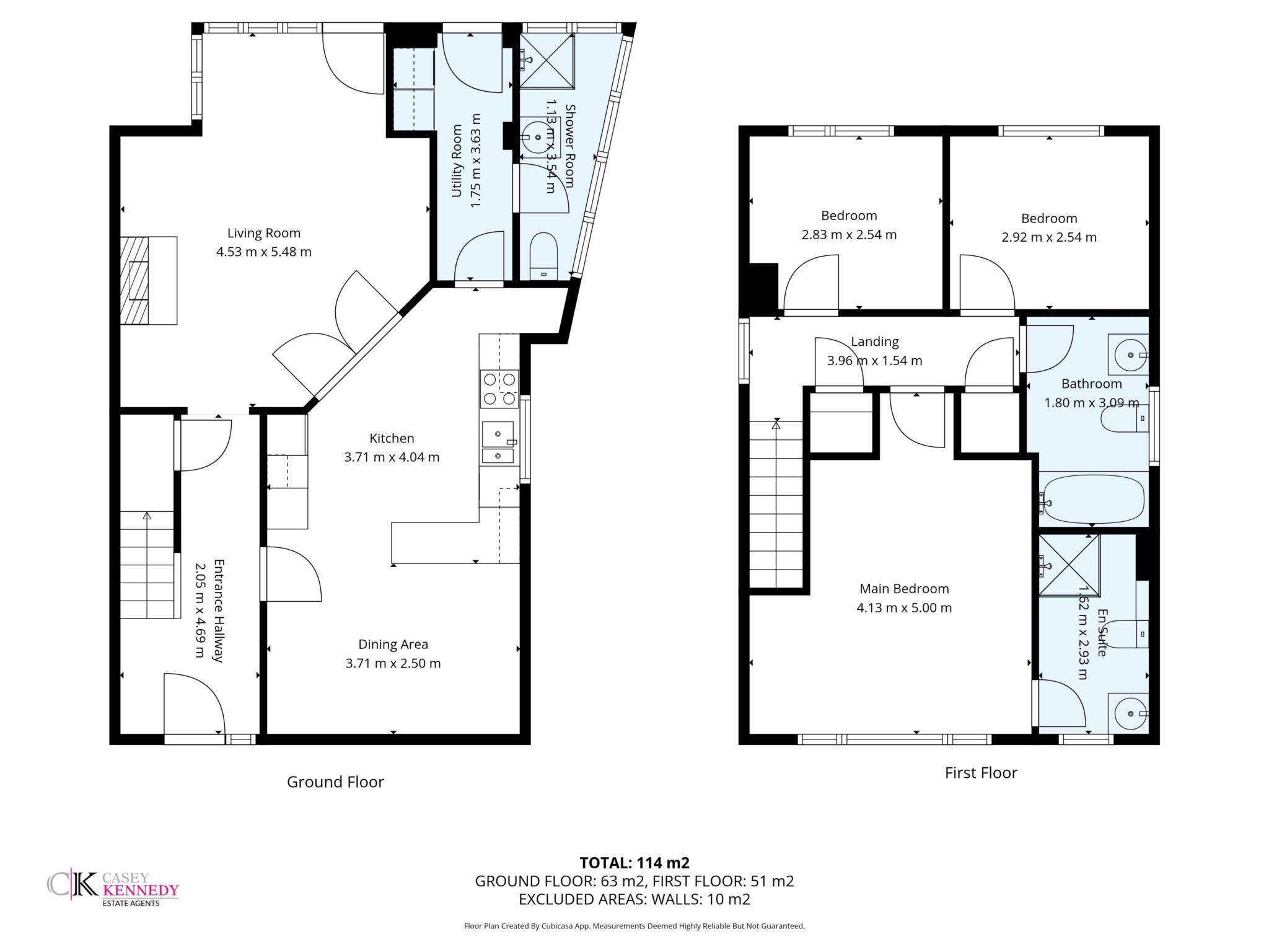
114sq. m
BER
BER No: 118948033
EPI: 213.11
Description
Bidding closing 12th March. Last veiwing Sat 7th March 10.15-10.45am. Call or email for most recent offers.
Welcome to this delightful, bright detached house in a quiet back corner of the popular and family friendly Lakelands community in Stillorgan,
Accommodation consists of a bright entrance hall with under-stairs storage. Double doors opening to a spacious living room with open fireplace and large windows opening to a private back garden. Double doors lead to the kitchen / dining room to the front of the property which is flooded by natural sunlight from three large windows.The attractive shaker-style kitchen comes fully equipped with the full range of appliances. A utility corridor with space for a washing machine and dryer, and a door to the downstairs shower room, leads to a convenient back door. Upstairs there are three bedrooms with an ensuite off the main bedroom and a further family bathroom.
Lakelands is close to fantastic selection of highly regarded schools including St. Benildus, St. Raphaelas and Nord Anglia. It is a very popular and family friendly estate with large green areas and neighbourhood shops within the estate. There is easy access to Stillorgan Shopping Centre, Dundrum Town Centre and Beacon Court, Sandyford. It is well served by the LUAS and a range of bus routes. It is close to the employment hubs in Sandyford, Dundrum and Central Park in Leopardstown. Local amenities include Airfield Farm, Leopardstown Race Course and The Leopardstown Inn.
This property is vacant and ready for a new owner. Early viewing is highly recommended.
Features
- Detached house built 2002
- Situated on a quiet cul-de-sac corner near a large green
- Lovely bright house with large windows on 3 sides.
- Fitted shaker-style kitchen
- Three bathrooms
- Family friendly area with excellent schools and amenities nearby
- Popular estate off the Upper Kilmacud Road in Stillorgan
- Neighbourhood shops within the estate
- Freehold property with no service charge
- Vacant and ready for a new owner
Floorplan
Stillorgan Neighbourhood Guide
Explore other properties and sales history in Stillorgan.


