1 Greenlands, Sandyford Road
1 Greenlands, Sandyford Road
Price
€495,000
Type
Apartment
Status
For Sale
BEDROOMS
2
BATHROOMS
1
Size
117sq. m
0.25 acres
BER
BER No: 119276582
EPI: 303.91
Description
From the outside 1 and 2 Greenlands look like a substantial semi-detached house on large plot of 0.25 acres. It was constructed as two apartments #1 upstairs and #2 downstairs circa 1948.
These are unusual properties giving the potential for a very different lifestyle experience from the average home.
Both properties were under the same ownership for many years. The owner has now passed on. A probate application has been submitted. It is expected to be granted in May 2026. It is anticipated that the two properties can be sale agreed and the conveyancing process commenced while probate is pending.They are both now vacant, empty and ready for a new owner to bring them into the 21st century.
The whole property is in need of extensive modernization. They have gas fired central heating, open fireplaces in all main rooms, and single glazed windows.
These are leasehold properties with an annual lease payment of about €21 each. There are 920 years left on the lease. Under Irish law the owner is entitled to acquire the freehold. This is recommended as there are restrictions within the lease preventing any alteration or addition to the premises internally or externally.
This is not part of a multiple-unit development. There is no service contract and no maintenance charge. It is up to the new owners of #1 and #2 to come to agreement regarding maintenance, repairs, bin collections, insurance and usage of the garden. As both properties are being sold simultaneously there is the possibility of purchasing both together, by the same owner, two family members or mutual friends.
This property comes with one of the two detached garages. There is a spacious front lawn, parking for 2-3 cars (each) and an enormous back garden 18m wide and over 35m long. The side garden is up to 6.2m wide. This gives the potential for development in the back garden subject to purchase of the freehold, and subject to planning, and of course agreement with the new owner of #2 downstairs. This property is being sold as is, as a leasehold property.
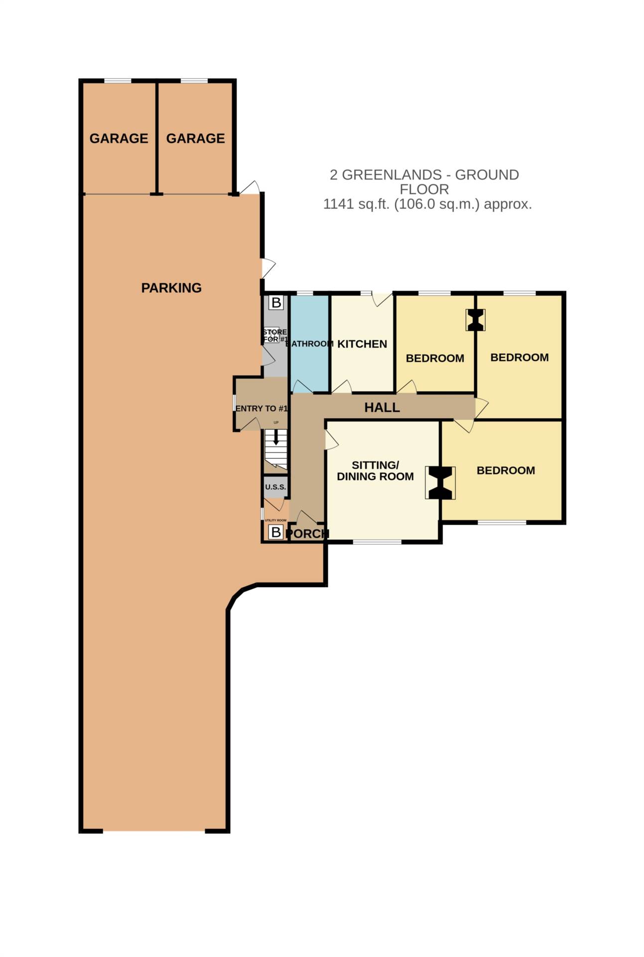
Accommodation consists of an entrance lobby to the side of the building. Behind this is a utility/strore room with a separate outside door. Up the stairs is a spacious landing with two windows a cloak room and a storage press. To the right is a spacious living room with an open fireplace fitted with an instant flame gas fire. Along the back are the bathroom, kitchen with interconnecting dining room (originally a 3rd bedroom), and a back bedroom.The main bedroom is to the front. Both bedrooms are large king sized rooms.
An attic hatch with staire ladder leads to a large open attic with a 2.75m apex height, giving potential to convert this to a duplex penthouse apartment, subject to purchasing the freehold, subject to planning; and subject to agreement with #2 downstairs.
Early viewing is highly recommended.
Features
- Top floor apartment with generous gardens (shared with #2 - also for sale)
- Not part of a multiple unit development
- No service charge
- Ideal for friends / relatives wanting own spaces
- In need of extensive modernization
- Detached garage
- Quiet cul-de-sac off the Sandyford Road
- Parking for 2-3 cars (each)
- Spacious attic with 2.75m apex height
Comparables
Other comparable properties that sold recently
Floorplan
Sandyford Neighbourhood Guide
Explore other properties and sales history in Sandyford.


